So, you already know that the West Wing is going and being replaced with a new construction broadly the same size, slightly wider, but what else is happening? Seriously, I don’t even know where to start other than we must be mad! In for a penny, in for a pound, we decided if we were really going to go for it, we really would GO for it. Here are the main changes:
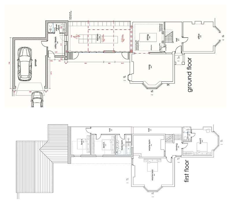
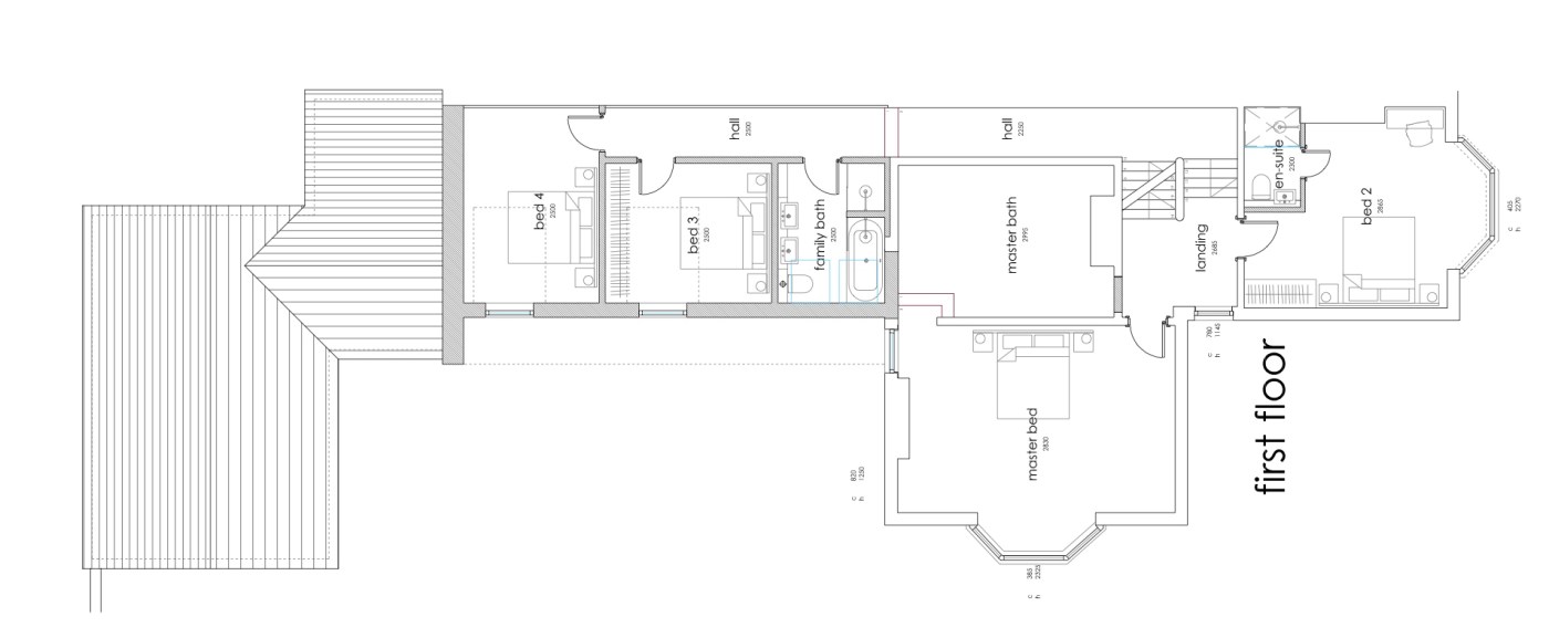
The East Side: To the right on the plans below is the east facing part of the house which had the original dining room on the ground floor and a bedroom above. Not a lot is changing here in the sense of square meterage, though full refurb is still required electrics, heating, plastering and window replacement. The ground floor will be my office (well spotted Andrea 😉 ) and on the first floor a guest bedroom, where we will be living for the duration of the build. We’re putting an en-suite in this room, which has been a bit of a challenge but totally necessary otherwise we’d be very stinky after a four month renovation.
The West Wing : Some of you rightly guessed from the challenge of looking at the old plans that the original West Wing is now going to be transformed into a fabulous garden- and south facing kitchen with sliding doors and a contemporary feel to the interior, accessed by a full length opening from the old kitchen area / new dining room. The whole front elevation of this part of the property is jumping forward by about a metre and a half, allowing two bedrooms to be formed from the original one on the first floor. A much improved family bathroom will also be created on the first floor, as well as a separate utility on the ground floor and a large garage / work space. I’m so excited about this new kitchen having lived with a completely rubbish one for 8yrs and you know how much I love my cooking. I can’t wait!!
The Cool Core : The main ground floor living space is staying in the same room but will be given a more modern feel with a much bigger opening to the new dining area, made flexible by a super cool sliding door. Upstairs the main bedroom stays positioned where it is but we’re creating a huge bathroom just for that master bedroom, accessed via a knock through from the bedroom and blocking up the door to the landing. Having lived without a bath for about three years you have NO idea how happy the thought of this sanctuary makes me. I may not get out of the bath for a month once it’s finished. And there’s more…. from the landing on the first floor there’s another set of stairs to a mezzanine level which is currently a mini bedroom. This is all going to be opened up to roof level and a dormer bedroom added to compensate for my greedy luxury private bathroom.
Phwef. Eight years of saving. Much planning. Much hard work. And we haven’t even really started yet! I hope you’ll enjoy following us on this exciting journey and please ask any questions via the blog or Twitter. I’m going to be blogging innovative techniques and specifications, specifying desirable yet affordable products, trying out local and young Brit designers, plus obviously achieving an amazing interior design finish. After many years creating wonderful homes for tenants, clients and friends, I’m so delighted to be finally designing and renovating my own Moregeous Mansion x


It’s going to be amazing can’t wait to see that kitchen x
And I can’t wait to cook in it!!
absolutely lovely floorplan. Was a bit sceptical at first, sliding dark grey doors to the red brick, but it will be so worth it for the inside layout. Probably a tight budget, but if possible I would opt on having the chimneys rebuilt, they do so much for that quirkiness, and also oak doors, or something painted in blue-green =)
The doors will fold out rather than slide and because the brick is reclaimed it’s s good mix of darks, pinks and whites which work well with a deep grey.We’re trying to keep all the chimneys, both inside and out, just lowering the ones outside as they were too high and unstable. I love quirkiness too!